
Project Details
Location:
Alpine, California
Year:
2017
Size:
1000 sqft
Feature:
Expansive Kitchen
Feature:
Loft
Style:
Modern
Category:
Accessory Dwelling
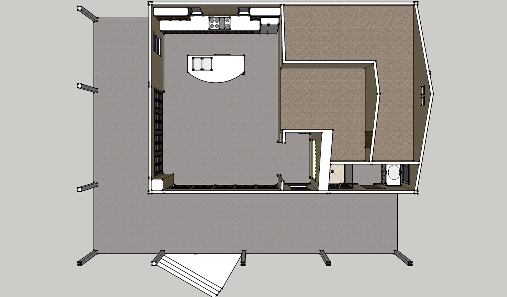
Alpine Guest House
This 1000 sqft guest house accessory dwelling unit features an expansive kitchen dining room area, bedroom, bathroom, laundry, and a loft storage area to service the client’s socially active lifestyle. Located in Alpine, California.
Designed as H&K Architects in 2017. A collaboration between Gary F Harcourt, Architect, and Rick E Kaufman, Architect.
Contact Us
Have a similar project in mind?
Contact us today to discover how we can best serve you on your next building project!
Tel: +1 (805) 466-7674
E-mail: gary@gfharchitecture.com