Working Hours Monday - Friday
9:00-5:00
Contact
1.805.466.7674
Home
About
Our Team
Join Our Team
Our Services
FAQ
Privacy
Testimonials
Featured
Featured Projects
Featured Marketing
Featured Remodels
Featured Renderings
Featured Videos
Portfolio
Residential
Commercial
Multi-Residential
Assisted Care
View More
Blog
Contact
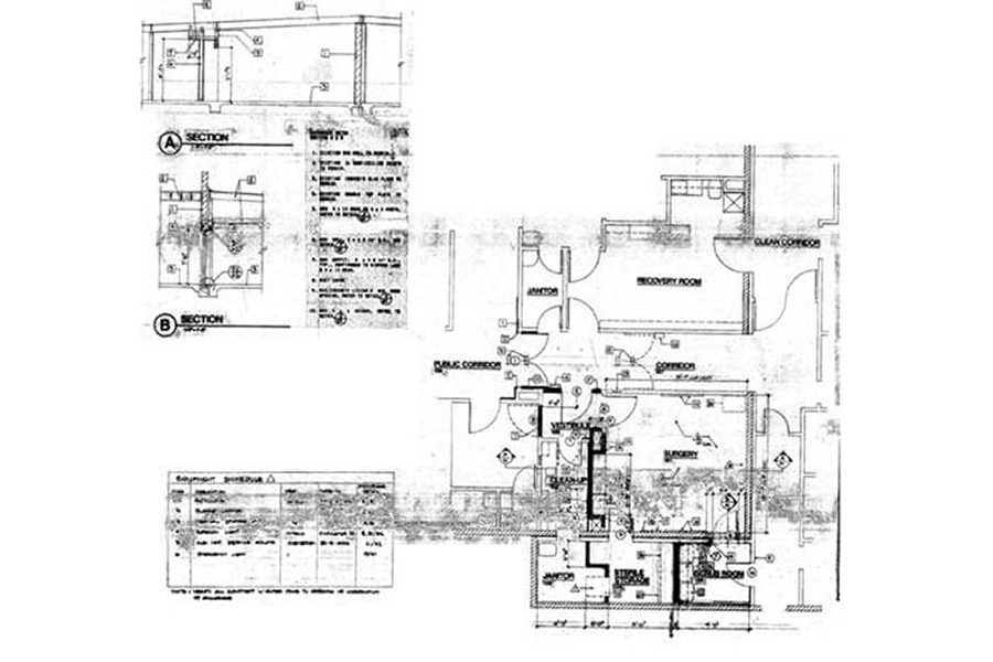
Medical
Home
/
Portfolio
/
Medical
All Medical
Convalescent
Hospitals
Other
Tenant Improvements
Country Care Convalescent
Paso Robles Dental
Beacon Of Hope
French Hospital Clinic
French Medical Hospital
Van Nuys Convalescent
Leavitt Family Dental
Coastal Cardiology TI
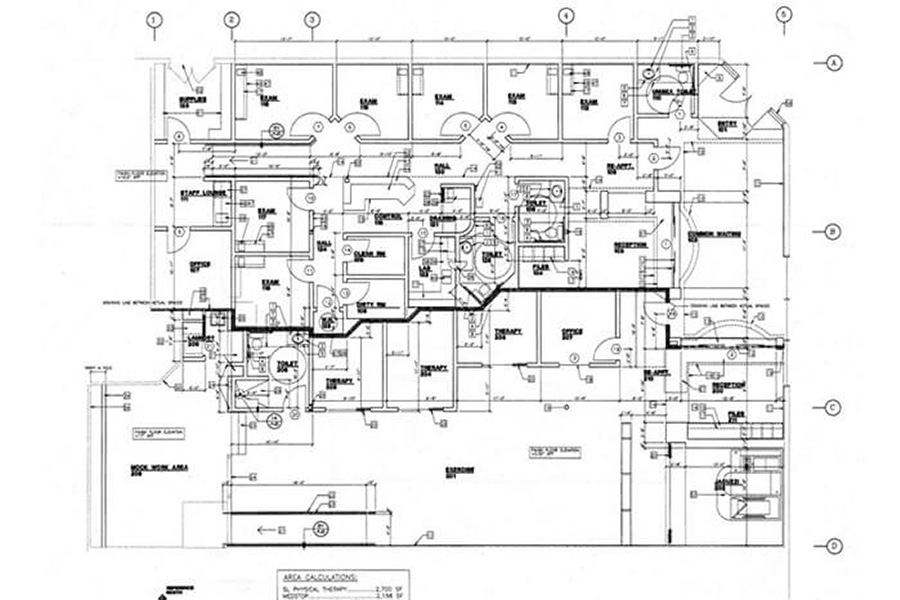
Physical Therapy TI
Valley Community Hospital
Med-Stop Physical
Twin Cities Hospital