
Project Details
Master Bedroom Suite
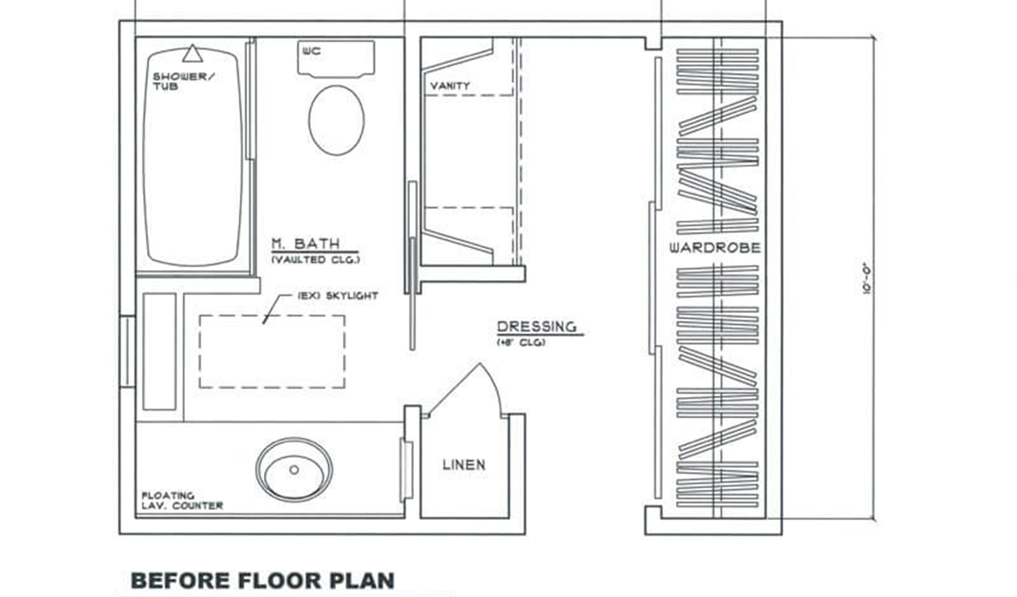
This project consisted of the demolition of an existing deck off the Master Bedroom as well as dressing/vanity area with adjoining bathroom.
The closet space was relocated into the Master Bedroom area and divided between “his” and “her” separate closets, and the deck was absorbed into the new expanded master bedroom.
The new Master Bathroom consists of double Kohler lavs with custom cabinetry and the vanity counter with custom mirror and extra storage including a built-in hamper.
The medicine cabinet is located between the two beveled mirrors and opposite the Kohler Jacuzzi centered between two 8” tapered ionic limestone columns setting above the built-up tub porcelain tile platform.
The shower consists of tile and stone with seven heads including a rain-head and four adjustable jets. “Her” shower head is adjustable in height and can be hand-held, while “his” is stationary and mounted higher. The soap & shampoo inset is tucked in the corner as are the controls, both out of sight.
The ceiling is vaulted with an arched soffit between columns and soffit ceilings above the shower to keep the heat in, creating shelves for decor and more interest in the overall volume of the space.
Contact Us
Have a similar project in mind?
Contact us today to discover how we can best serve you on your next building project!
Tel: +1 (805) 466-7674
E-mail: gary@gfharchitecture.com