
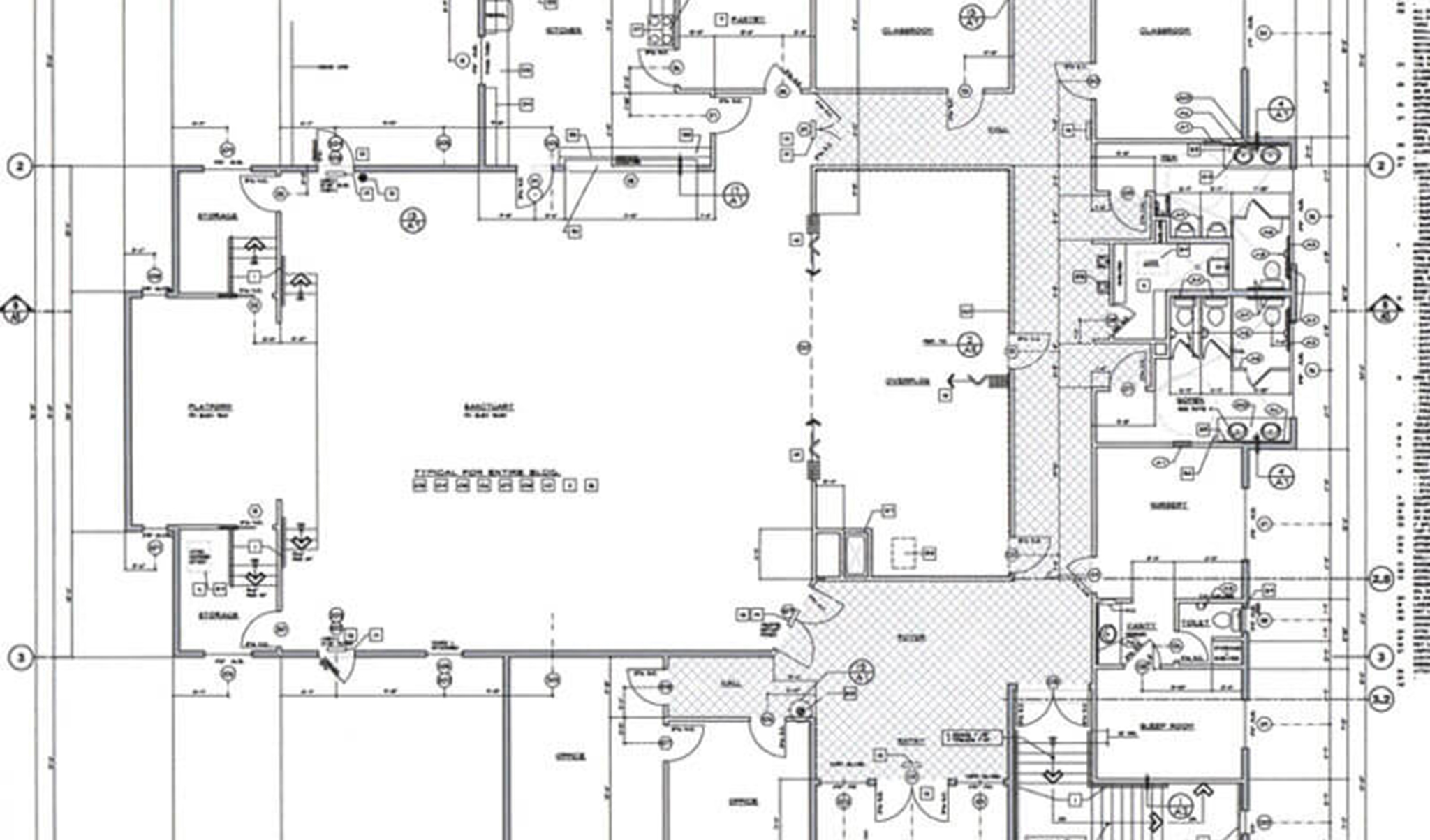
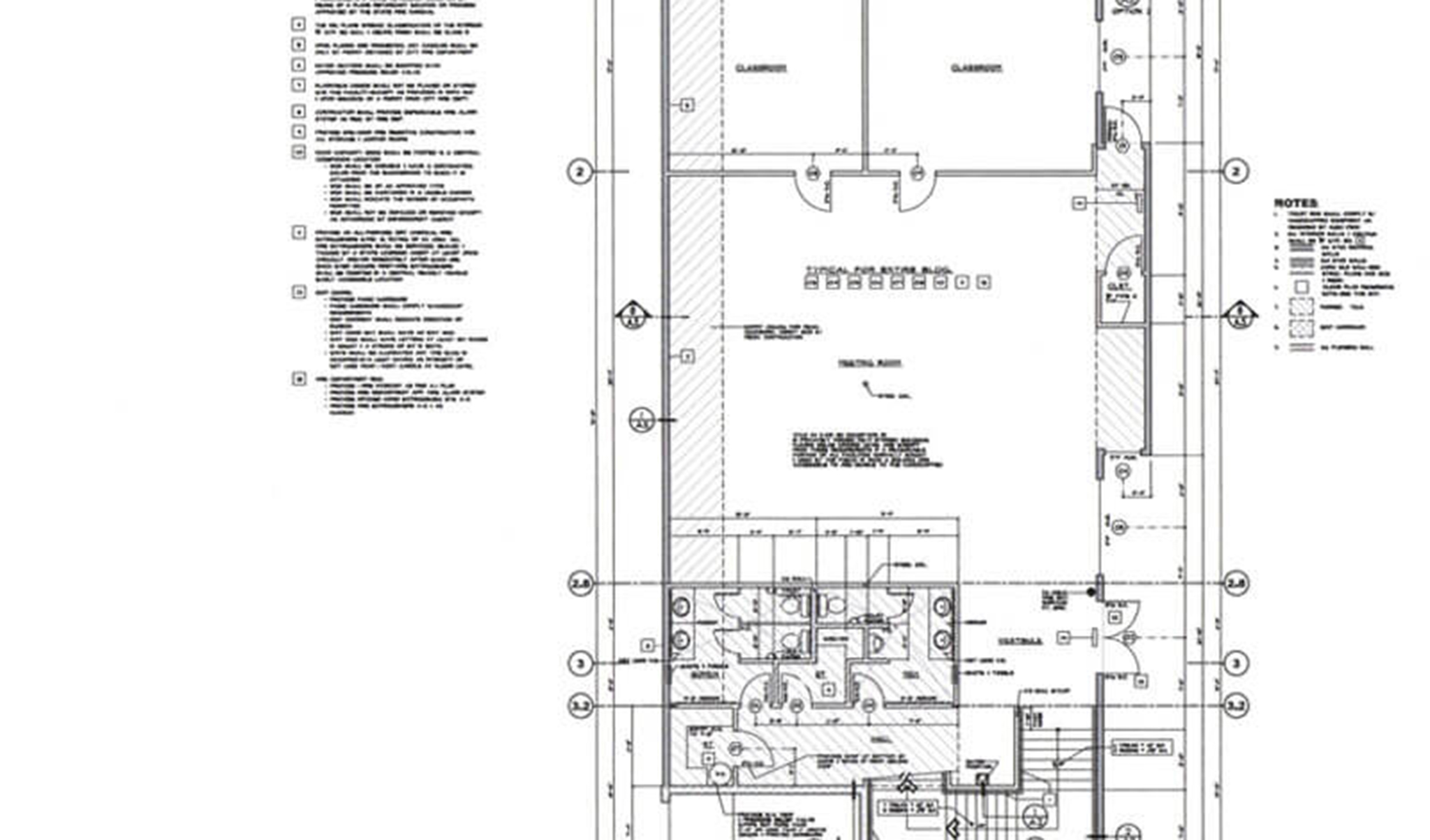
Project Details
Location:
Atascadero, California
Size:
Pending
Feature:
Sanctuary
Feature:
Multi-Purpose Room
Feature:
Staff Offices
Category:
Religious
Faith Baptist Church
This church project consisted of construction of the sanctuary with a multi-purpose room below, and staff offices at the perimeter.
Contact Us
Have a similar project in mind?
Contact us today to discover how we can best serve you on your next building project!
Tel: +1 (805) 466-7674
E-mail: gary@gfharchitecture.com